Eleuthera Acreage

Governor's HarbourEleuthera BSPrice: $3,750,000

  • Price: $3,750,000
  • Est. Mortgage of $/month
  • 284 Days on Market
$
$
%
$/month over payments
Federal 30-year interest rate: 6.22% last updated on Nov 6, 2025
* All Figures are estimates. Check with your bank or proposed mortgage company for actual interest rates.
This product uses the FRED® API but is not endorsed or certified by the Federal Reserve Bank of St. Louis.
  • $3,750,000List Price
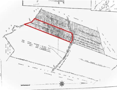
  • 83.47Acreage

Property Details of Governor's Harbour

Property Details

Exterior Features

Listing courtesy of MLS

The data relating to real estate for sale/lease on this website comes in part from a cooperative data exchange program of the Bahamas Multiple Listing Service (MLS) in which these Brokers participate (BREA). The properties displayed may not be all of the properties in the Bahamas MLS database, or all of the properties listed with Brokers participating in the cooperative data exchange program. Properties listed by Brokers other than this Broker/Agent are marked with the IDX Symbol, indicating an agreement to exchange property information. Detailed information about such properties are noted as Courtesy of: The Bahamas MLS. Information provided is thought to be reliable but is not guaranteed to be accurate. You are advised to verify facts that are important to you. No warranties, expressed or implied, are provided for the data herein, or for their use or interpretation by the user. This information is protected from unlawful duplication by copyright.

Hi there! How can we help you?

Contact us using the form below or give us a call.

Send Us A Message:

I agree to receive marketing and customer service calls and text messages from Corcoran C.A. Christie Bahamas. To opt out, you can reply 'stop' at any time or click the unsubscribe link in the emails. Consent is not a condition of purchase. Msg/data rates may apply. Msg frequency varies. Privacy Policy.

Do not fill in this field:

This site is protected by reCAPTCHA and the Google Privacy Policy and Terms of Service apply.

Hi there! How can we help you?

Contact us using the form below or give us a call.

Send Us A Message:

Do not fill in this field:

This site is protected by reCAPTCHA and the Google Privacy Policy and Terms of Service apply.

Hi there! How can we help you?

Contact us using the form below or give us a call.

Send Us A Message:

Do not fill in this field:

This site is protected by reCAPTCHA and the Google Privacy Policy and Terms of Service apply.

Do not fill in this field:

This site is protected by reCAPTCHA and the Google Privacy Policy and Terms of Service apply.

Do not fill in this field:

This site is protected by reCAPTCHA and the Google Privacy Policy and Terms of Service apply.

Do not fill in this field:

This site is protected by reCAPTCHA and the Google Privacy Policy and Terms of Service apply.

$

Do not fill in this field:

This site is protected by reCAPTCHA and the Google Privacy Policy and Terms of Service apply.